Noordeloos | Oude Maalderij met grote kavel aan de Giessen VERKOCHT!

Smoutjesweg

omschrijving

Verkocht!

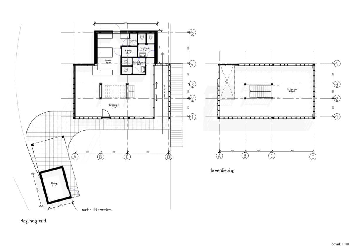
Aan de Giessen te Noordeloos staat al jarenlang een oude maalderij. De locatie heeft een lange

geschiedenis welke terug gaat tot het jaar 1788 (bron: Nederlandse Molendatabase). Op de locatie

heeft tot het jaar 1932 een wipkorenmolen gestaan. Op de plaats van de voormalige wipkorenmolen

is na de sloop een mengvoederfabriek gesticht. Deze mengvoederfabriek is gebouwd op de veld-

muren van de molen. De veldmuren zijn tot op de dag van vandaag nog aanwezig en duidelijk

herkenbaar. De oude maalderij is inmiddels niet meer functioneel, maar verwijst nog wel naar het

rijke verleden van deze locatie. Om dit verleden niet verloren te laten gaan heeft de toenmalige

gemeente jaren geleden besloten de oude maalderij een horecabestemming geven, zodat op de

locatie oude maalderij van een restaurant kan worden gerealiseerd. In deze memo wordt een

overzicht van de bouw- en gebruiksmogelijkheden op de locatie en overige relevante informatie

beschreven.

Omgevingsplan gemeente Molenlanden

Het plangebied is gelegen binnen het bestemmingsplan ‘Buitengebied Giessenlanden’ (vastgesteld

op 11 maart 2015). Het bestemmingsplan maakt onderdeel uit van het tijdelijke deel van het

Omgevingsplan gemeente Molenlanden. De locatie heeft de volgende bestemmingen:

• Agrarisch (het pad naar het horecagebouw);

• Horeca (horecagebouw en omliggende gronden en parkeerterrein);

• Verkeer (deel van de openbare weg).

De dubbelbestemmingen:

• Waarde – Archeologie – 3 (archeologisch onderzoek nodig bij bodemingreep groter dan

50 m2 of dieper dan 30 cm);

• Waarde – Archeologie – 4 (archeologisch onderzoek nodig bij bodemingreep groter dan

250 m2 of dieper dan 30 cm);

• Waterstaat – Waterkering;

• Leiding – Gas;

En de aanduidingen:

• Bouwvlak (strak rondom horecagebouw);

• Functieaanduiding ‘parkeerterrein’;

• Gebiedsaanduiding ‘vrijwaringszone – dijk’ (beschermingszone waterkering).

Noordeloos | Oude Maalderij met grote kavel aan de Giessen VERKOCHT!

Object ID: 1697

150 m²

Uw horecamakelaar
Direct contact

Basis gegevens

Object Titel ︰ Noordeloos | Oude Maalderij met grote kavel aan de Giessen VERKOCHT!
Object Pagina Titel ︰ Noordeloos | Oude Maalderij met grote kavel aan de Giessen VERKOCHT!
Object ID ︰ 1697
Dossier Nr. ︰ MIH 1516
Oppervlakte ︰ 150 m²
Datum van beschikbaarheid ︰ 01-01-2025

Locatie

Straatnaam ︰ Smoutjesweg
Plaatsnaam ︰ Noordeloos
Provincie ︰ Zuid-Holland
Land ︰ Nederland

Omgeving

In de buurt van ︰

Aan het water de Giessen in Noordeloos

Oppervlakte

Perceeloppervlakte ︰ 1600 m²
Bedrijfsoppervlakte ︰ 150 m²

Woning

Terras ︰ Ja

verplichtingen

Personeel verplichting ︰ Nee
Speel automaten ︰ Nee
Brouwerijverplichting ︰ Nee

Meer eyecatchers!

VERKOCHT! Curacao Willemsstad | toplocatie restaurant met seaview uitz
Alle

VERKOCHT! Curacao Willemsstad | toplocatie restaurant met seaview uitz

190 m²
Wegens pensioen mooie en goedlopende cafetaria in N- Brabant te koop.
Verkocht
Geen Status

Wegens pensioen mooie en goedlopende cafetaria in N- Brabant te koop.

70 m²
Oostenrijk Tirol Niederau | Apre skihut Schnapshutte
Te Koop
Top object

Oostenrijk Tirol Niederau | Apre skihut Schnapshutte

Op aanvraag
200 m²
Gorinchem | restaurant met overdekt terras.  VERKOCHT!
Verkocht

Gorinchem | restaurant met overdekt terras. VERKOCHT!

65 m²